HOME
Proyectos
Equipo
Contacto
ES
EN
CA
< Volver
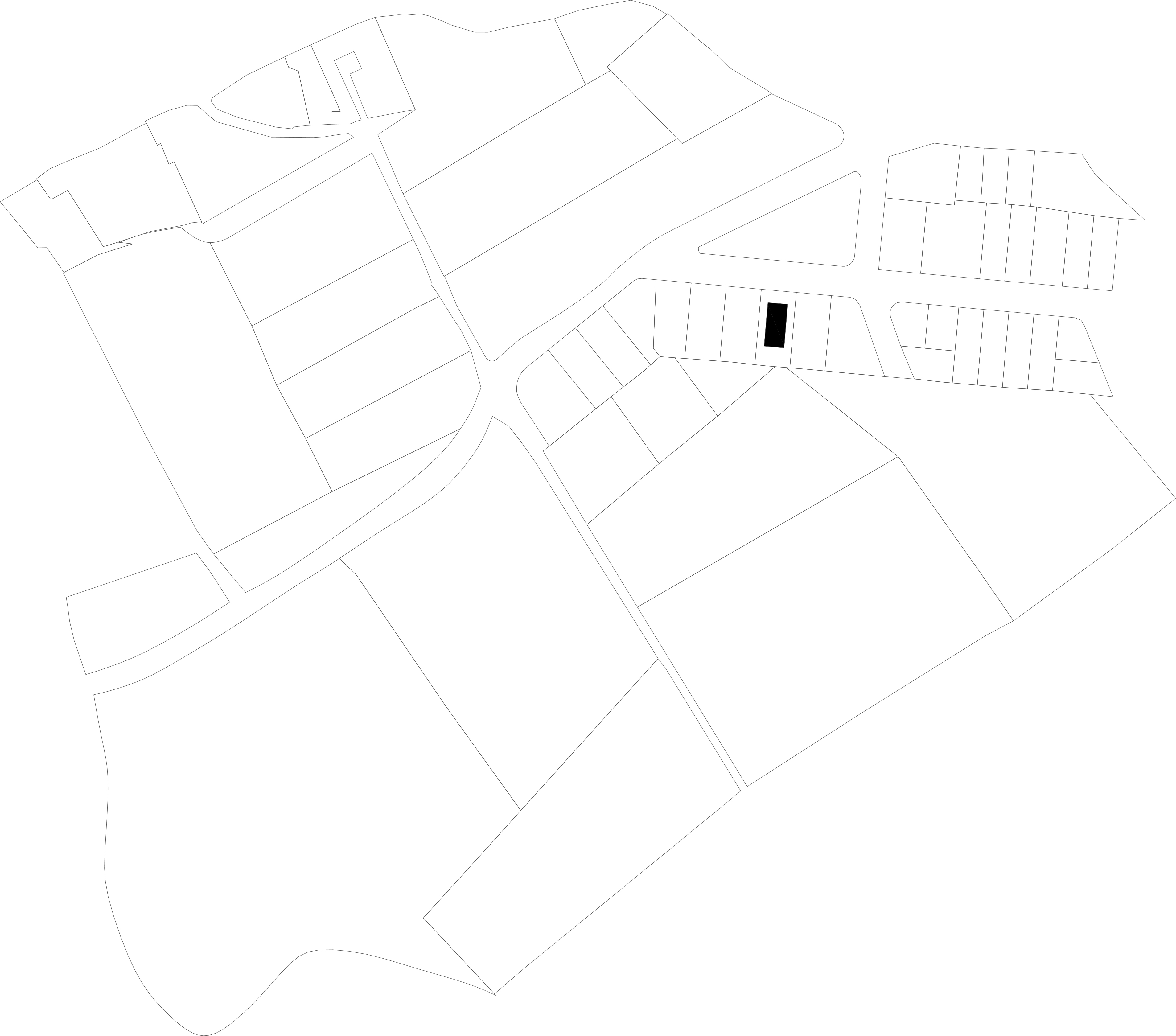
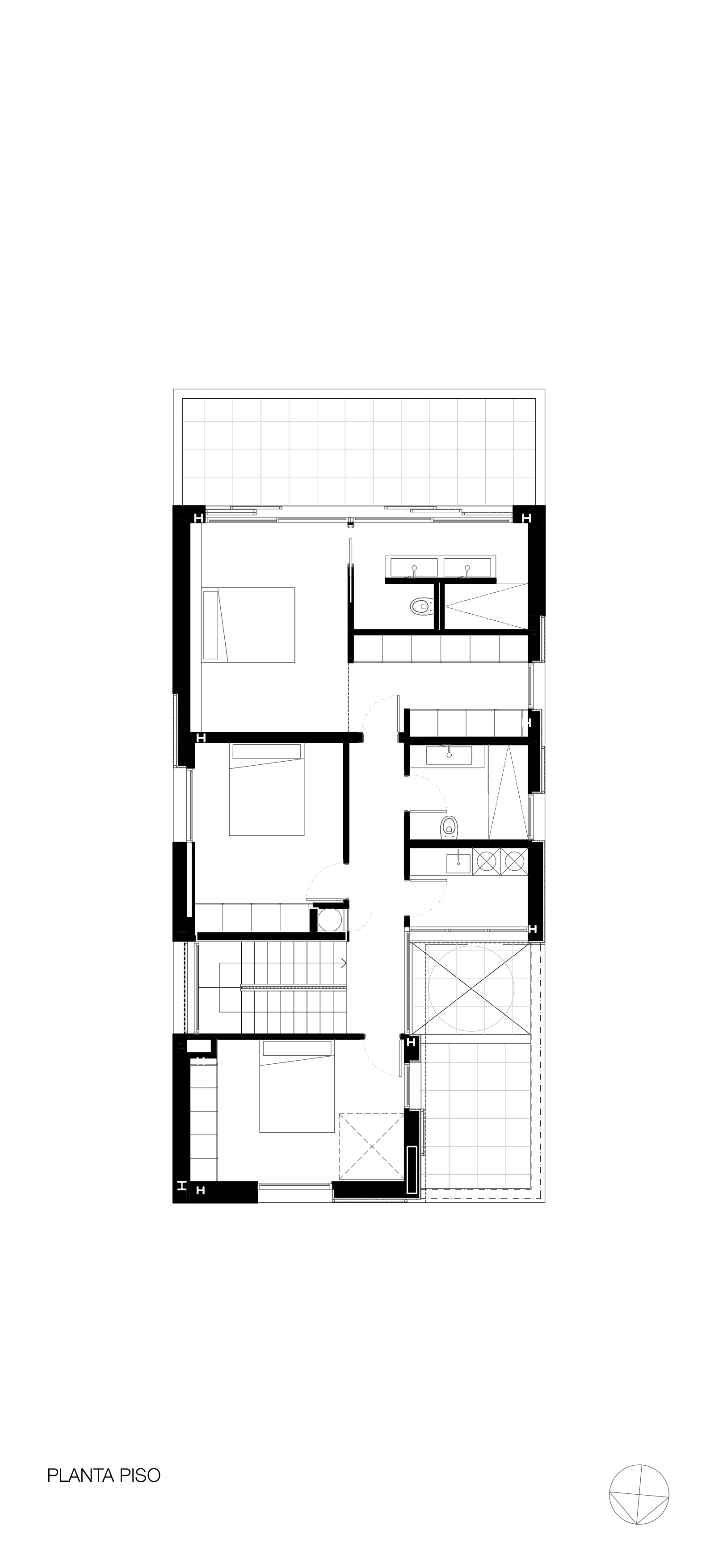
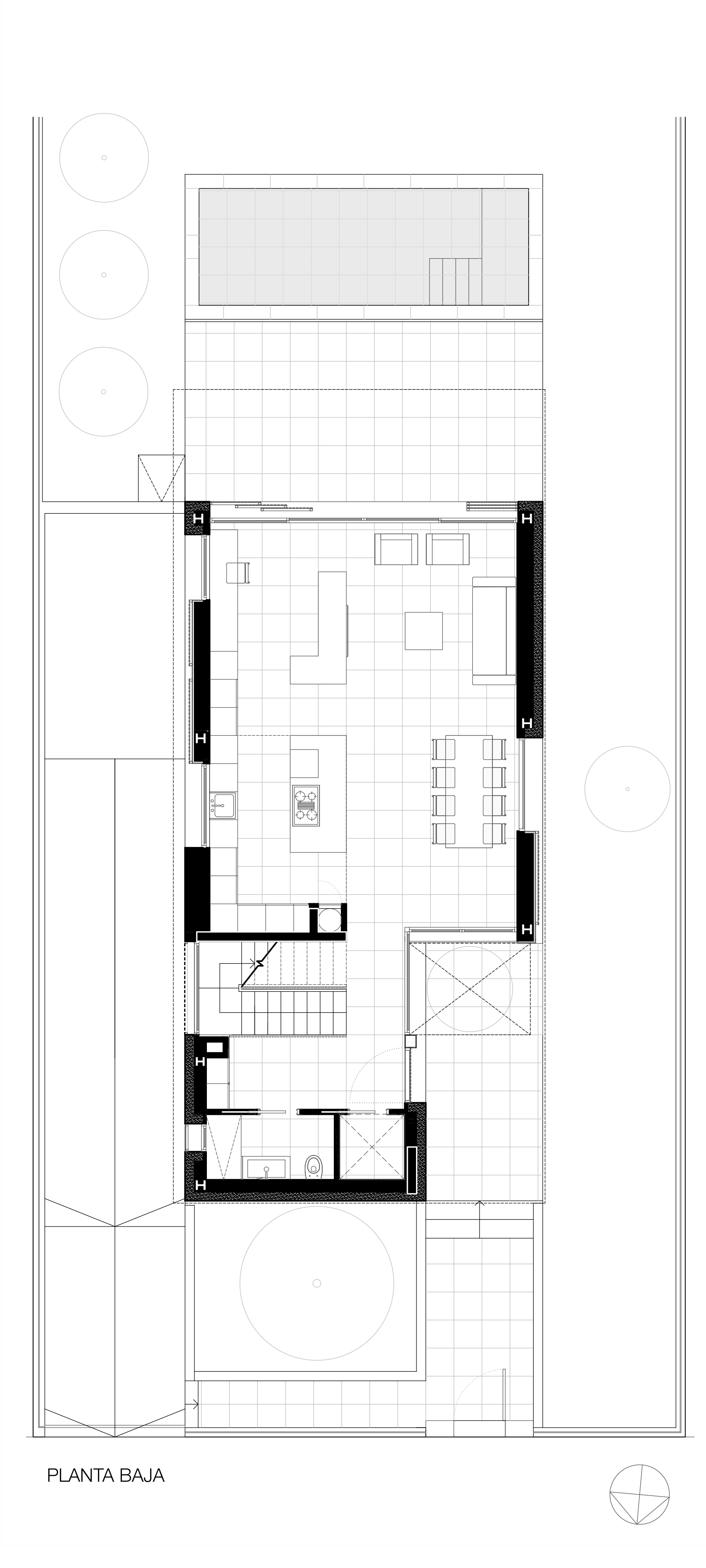
Casa FBM
Lloseta
En construcción.
Superficie: 348m2
Año: 2021